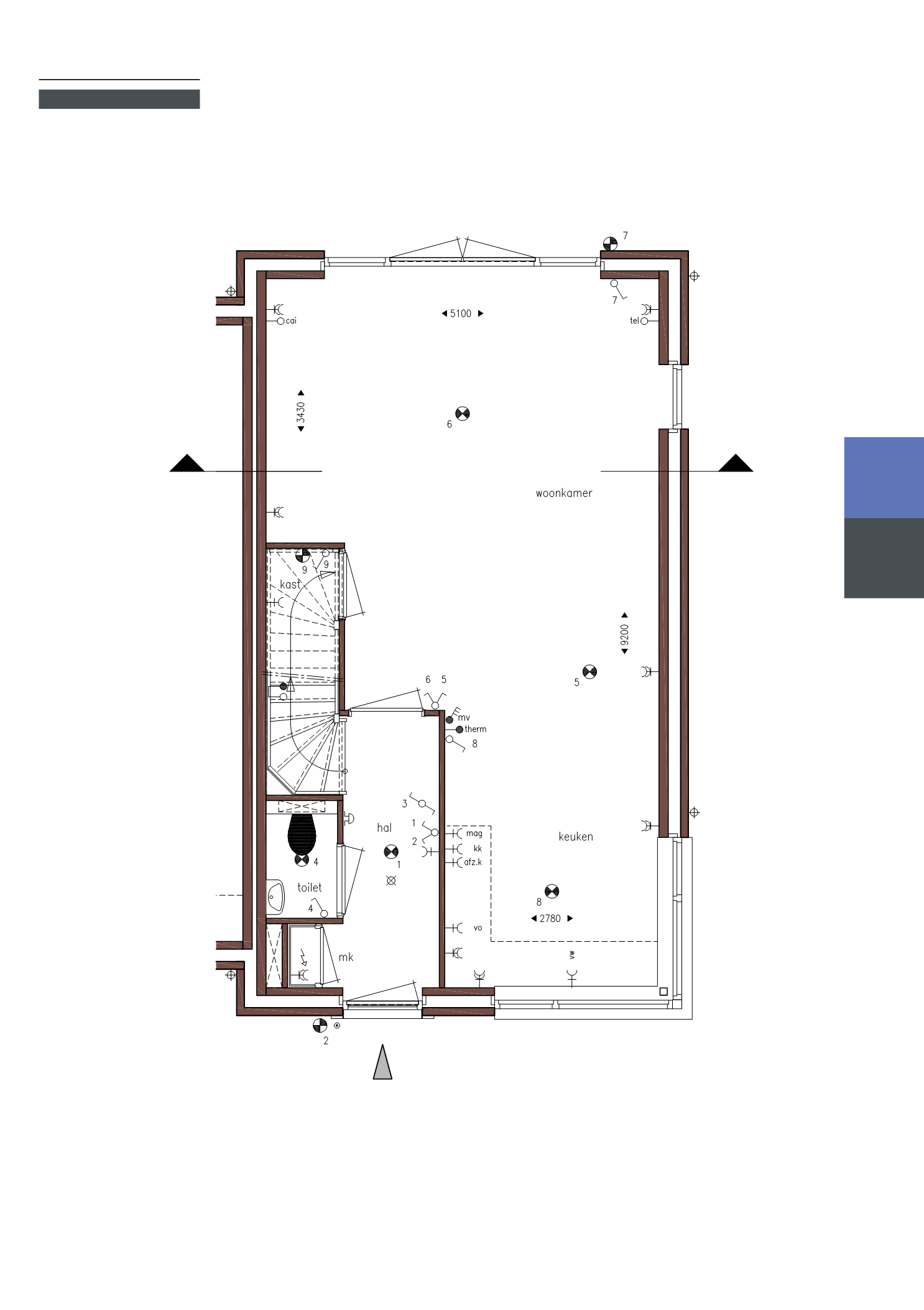
Brabander aan den Heuvel Fase 4 | Venray - Jansen Bouwontwikkeling B.V. - page 19

GETEKEND BOUWNUMMER 01 . GESP I EGELD BOUWNUMMER 08*
Z I E RENVOOI B I J AFWERKSTAAT OP PAGINA 62 / 63
*Let op: De kozijnen op de begane grond van bouwnummer 08 zijn in de voor- en zijgevel afwijkend.
Zie hiervoor de gevelaanzichten op pagina 22/23.
HOEKWONINGEN
BEGANE GROND
BOUW-
NUMMER
01 & 08
SCHAAL 1 : 50
19
1...,9,10,11,12,13,14,15,16,17,18 20,21,22,23,24,25,26,27,28,29,...64
Powered by FlippingBook